Education Design

Senior Capstone Project

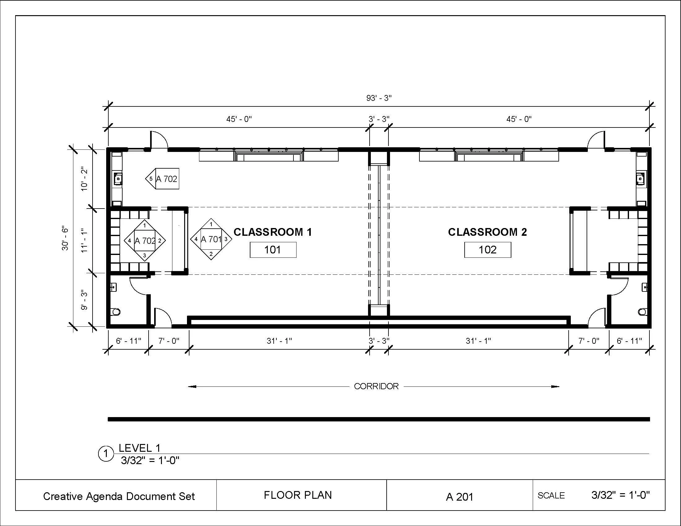
The complete capstone manuscript can be downloaded here. It contains the literature review, research agenda, creative agenda and document set. A PDF of the document set containing floor plans, reflected ceiling plans, and interior elevations can be downloaded here.

Research Question

Hypothesis

Project Statement

Project Scope

Concept Statement

How can K-5 learning environments be designed to improve student’s academic performance?

Learning environments can be designed to improve student’s academic performance by applying flexible design strategies that meet student’s individual preferences while also accommodating pedagogical variations.

Through the application of research collected from the literature review and research agenda, two elementary school classrooms and interstitial spaces will be designed using an evidence-based design solution to improve student’s academic performance by increasing student engagement and ability to focus on task while minimizing distractions.

The Capstone project will include two elementary school prototypical classrooms and interstitial spaces. The first classroom will prioritize the needs to younger elementary students from kindergarten to second grade. The second classroom will prioritize the needs of older elementary students from third to fifth grade.

For too long, classrooms have embodied a static learning environment designed to suit an inflexible learning model. As pedagogy has evolved to include student-centered learning, classroom design must adapt to prioritize the evolving needs of students. These flexible learning environments will pivot to meet both student and teacher’s individual needs and preferences through simple modifications to increase engagement and time on task while minimizing distractions.

Poster

Document Set

Renders

Next
Next

Hospitality Design